
軍械庫展廳( 攝影:Giulio Squillacciotti | 來源:威尼斯雙年展)
威尼斯雙年展起源于1895年,是當今世界最具影響力的當代藝術展會之一,它所包含的國際藝術雙年展與國際建筑雙年展隔年交替舉辦。2005年,中國首次以“國家館”的身份亮相威尼斯藝術雙年展,自此開啟了中國館參加威尼斯雙年展的歷程。十多年來,威尼斯雙年展中國國家館(以下簡稱“中國館”)已成為向世界展示中國當代文化藝術發展成就和水平的重要窗口,也成為中國優秀的策展人、藝術家和建筑師走向國際的重要平臺。
2023年6月22日,威尼斯雙年展基金會主席羅伯特·西庫托(Roberto Cicutto)和第60屆威尼斯國際藝術雙年展總策展人阿德里亞諾·佩德羅薩(Adriano Pedrosa)公布了2024年威尼斯國際藝術雙年展的主題為“處處都是外人”(Foreigners Everywhere),展覽將于2024年4月20日至11月24日(預展時間為4月17日至19日)在雙年展固定場地綠園城堡(Giardini)、軍械庫(Arsenale)以及威尼斯市內的其他場地舉辦。
阿德里亞諾·佩德羅薩是巴西著名策展人、藝術史家,曾在國際上多個知名藝術媒體平臺發表文章,自2014年以來擔任巴西圣保羅藝術博物館(MASP)藝術總監。曾任2006年第27屆圣保羅雙年展聯合策展人,2012年第9屆上海雙年展圣保羅城市館策展人等,他也是威尼斯雙年展史上首位來自拉丁美洲的總策展人。

中國館立面圖

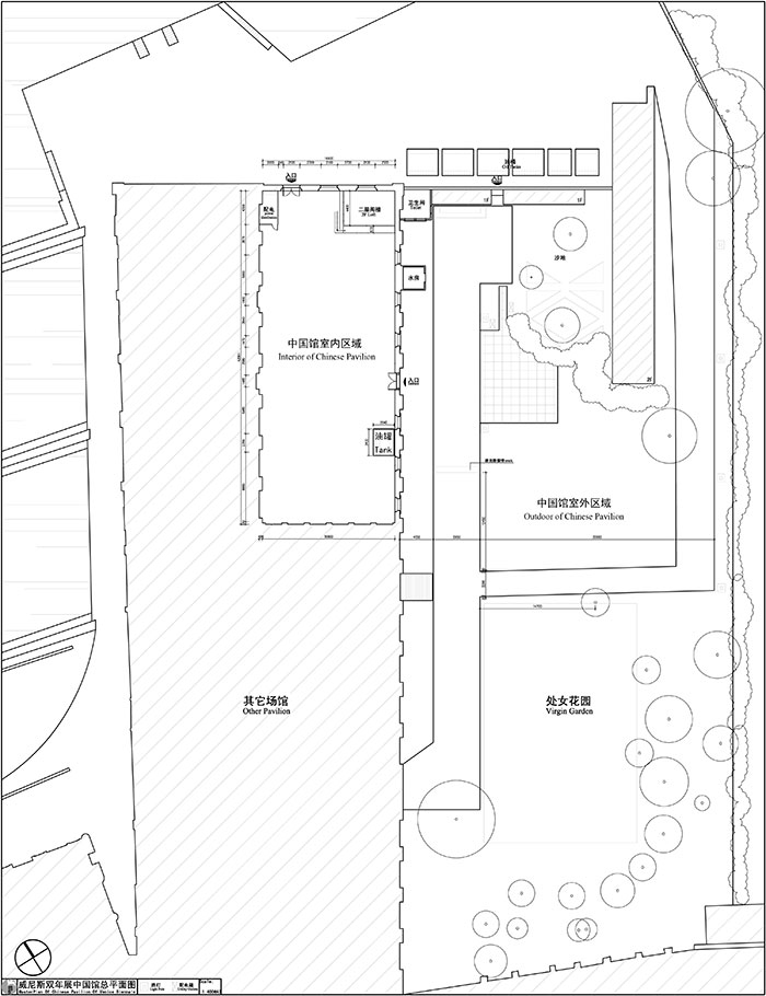
中國館平面圖

中國館剖面圖
威尼斯雙年展中國館辦公室謹此誠邀來自全國各地的藝術策展人、藝術家參與第60屆威尼斯國際藝術雙年展中國館策展方案的公開征選。所有參與征選人員均需提交完整的策展方案,相關參選細則如下:
一、基本要求
1.展覽主題:本屆中國館主題為“美美與共”,展覽策劃應根植于中華優秀傳統文化,主旨鮮明、立意新穎,通過展示中國當下藝術的發展面貌和最新實踐成果,體現中華文明開放包容的文明特質和兼收并蓄的文化精神,提升中國當代藝術的國際影響力。
2.策展方案:中國館的策展方案應有完整的敘事邏輯,通過當代藝術的表達方式闡釋對中華優秀傳統文化的理解、傳承,創造性轉化與創新性發展,講好中國故事,展現可信、可愛、可敬的中國形象;展覽框架和敘事線索完整清晰,參展作品有代表性和創新精神,力求展覽內容與展陳形式和諧統一。(策展方案具體內容要求詳見第二大點)
3.展陳形式:對展陳形式沒有特殊限定,但應充分考慮中國館的室內外展覽空間條件,因地制宜,注重內外關聯,通過空間敘事拓展觀眾對展覽的感知和體驗。展陳設計和搭建應遵守威尼斯雙年展組委會的場地使用規范,確保安全。(中國館平面、立面圖及場地使用規范:
請復制以下鏈接至百度網盤下載:https://pan.baidu.com/s/1Hqbw1DHqY0yQfyA21c6fdA
密碼:0mcb)
4.參展資質:策展人應具有中國國籍,有當代藝術或相關領域的策展經驗(請提供簡歷或有關資質證明),提出的策展理念和呈現方式能代表當今國際前沿水準,具有較強的資源調動和整合能力,并能夠根據展覽的組織、協調和推廣需要組建穩定的工作團隊。
二、策展方案
1.策展思路。策展思路應充分考量中國館作為國家級對外展示平臺的水準與要求,結合新的時代語境和技術條件,闡釋推介具有中國特色、體現中國精神、蘊藏中國智慧的優秀文化。
2.整體方案。整體方案應包含展覽落地完整要素,明確參展藝術家和參展作品,請勿虛構羅列未征得同意的參展藝術家、學術支持等人員名單。展陳效果應遵循內容和形式的整體性和創新性相統一。
3.技術、施工方案、安裝材料及方式、運輸方式等詳細參數。
4.展覽費用,包括整體經費預算、尋求資金支持的可行性方案等。
5.宣傳計劃,包括境內外宣傳布局和時間節點規劃。
6.配套活動,如圓桌論壇、線上導覽等。
7.預期目標,包括學術價值和境內外影響力等。
8.工作日程表,包括各階段重點事項等。
9.應急預案,包括但不限于因自然災害、流行病疫情等導致的展品運輸、搭建安裝等應急預案。
三、費用原則
1.威尼斯雙年展中國館主辦方將負擔中國館的場地租金、展覽期間場地看護的人工費、國內新聞發布會及威尼斯雙年展期刊信息等相關宣傳費,并適當補貼展品的國際運費。
2.中國館展覽的策展方需負擔策展所需費用、展品的籌集(含展品、展陳的制作、搭建)、展品境內及國際運輸不足部分的費用,布、撤展費用,相關配套活動以及展覽期間觀眾意外傷害險等費用。
四、方案評審
1.策展方案的評審工作將由文化和旅游部組建的專家評審委員會負責,并按照相關工作流程具體安排。
2.專家評審委員會將對所有符合條件的策展方案進行評審。一旦方案被選定,將及時通知相應申請人。方案一經評定,不得擅自修改。
3.我們將對提交的策展方案嚴格保密,未被選定的方案恕不退回。
五、方案提交
1.提交時間:方案提交截止日期為2023年10月31日
2.提交方式:電子郵件或郵寄。
電子郵箱:europe@chinaculture.org
郵寄地址:威尼斯雙年展中國國家館辦公室
北京市東城區朝陽門北大街10號(1305室)
郵編:100020
3.聯系方式:
聯系人:張彥雯
電話:010-59881962/1975
傳真:010-59881958


国内自拍视频综合体