
圖片來源:Sportsry
幾天前,隨著主裁判的一聲哨響,巴西與韓國的八強爭奪戰結束,韓國隊就此黯然離場。與此同時,另一批人走進了場內,安全帽一戴、袖子一擼、叉車鑰匙一擰——這座自開賽以來擁有最高人氣和話題的明星體育場Stadium 974開始準備拆除。
從建成到拆除,Stadium 974體育場僅僅舉辦了7場世界杯比賽。

圖片來源:thesun

圖片來源:The Peninsula Qatar
是卡塔爾太有錢任性嗎?我們都知道這個國家經濟發達,可以說富得流油,貌似建完就拆、用完就扔也是一件“可以理解的事情”,但實際并非如此。這座體育場從規劃設計伊始就定位為一座節約成本、物盡其用、用完就拆的臨時球場。
有不少網友批評此舉太浪費:偌大一個體育場,建設是一筆錢,拆除又是一筆錢,難道繼續留著使用不香么?
實際上這部分網友忽略了很大一個方面,就是后期維護。這樣一座頂級規格的運動場,后期的維護開支是十分龐大和驚人的,如果在賽后沒有合理的場館使用方案,就會造成場館閑置,但與此同時維護的費用還要繼續支出,那么一筆賬算下來,還不如拆除合算。

圖片來源:Dezeen

圖片來源: ArchDaily
之前的南非和巴西世界杯都出現過這種困境。2014年的巴西世界杯,坐落在瑪瑙斯的亞馬遜競技場造價達到3.4億美元,庫亞巴的潘塔納爾競技場是3億美元,但比賽結束后如何運營這些體育館成為了一個大難題。兩座體育館都是頂級標準建造的,但兩個地方都屬于不發達地區,當地都沒有頂級足球俱樂部,小球隊又租不起這個場地,本想通過世界杯帶動當地旅游業,但又沒有配套的高級酒店和互聯網等硬件設施,也沒有明星跑到偏僻地區開演唱會,所以最終造成的結果就是體育場孤零零的杵在那里,就像個啃老族——大部分時間無所事事,還一直跟家里張口要錢。

巴西瑪瑙斯的亞馬遜競技場,圖片來源:Jose Zamith de Oliveira Filho ? jZamith

巴西庫亞巴的潘塔納爾競技場,圖片來源:stadiumdb
所以,從設計之初,深諳經營之道的卡塔爾人就已經規劃好了Stadium 974體育場極短的命運。據官方消息稱,體育場被拆除后,這片空地將會改造成擁有多家餐廳、零售門店的海濱娛樂區。

圖片來源:Arquitectura Viva
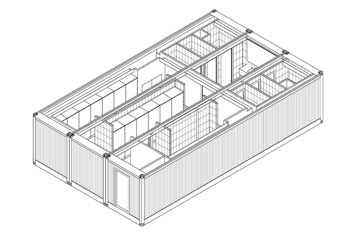
Stadium 974是世界杯歷史上第一座臨時球場,由西班牙Fenwick-Iribarren Architects 建筑事務所設計,名字中的“974”來源于卡塔爾的國際撥號代碼,就像中國的86。整座體育場由974個集裝箱與大量可回收建筑材料建造,以實現環保節能,以及向卡塔爾的航海歷史以及多哈港口附近的工業遺產致敬。
Stadium 974在建造時采用了模塊化鋼結構,就是為了方便運輸和組裝、拆卸。這些集裝箱也不是擺設和噱頭,它們大部分都是捐贈的,最初就是用于把建筑材料運到工地的。在體育館結構當中,這些集裝箱用作場館的樓梯、售貨亭、浴室等作用來使用。

圖片來源:AVC Group

圖片來源:ArtStation

圖片來源:Arquitectura Viva

圖片來源:Arquitectura Viva

圖片來源:Arquitectura Viva
體育場的大部分的構件都是在工廠制造完成后,再搬運到施工現場直接拼裝,就像樂高積木一樣。這樣的設計不僅能夠節省施工成本、降低建造時間和節約建筑耗材,最重要的是可以節約40%的用水量,這對于地處沙漠地帶的卡塔爾來說難能可貴。

圖片來源:Arquitectura Viva

圖片來源:Arquitectura Viva

圖片來源:Arquitectura Viva

圖片來源:Arquitectura Viva
另外,本次世界杯的場館要拆的也不止Stadium 974一座。
卡塔爾為這次世界杯投建了八座頂級體育場,并計劃在賽后拆除或改造其中三座,其中Stadium 974只是最先拆除的一座罷了。
新建的八座體育場耗資約100億美元,設計師都是扎哈?哈迪德、Foster +Partners、Fenwick-Iribarren等全球頂級建筑事務所。作為主辦方,卡塔爾要的就是場館氣派豪華,有里有面;但同時這些場館也要盡可能的做到材料環??苫厥?,爭取賽后開發出更多用處。

圖片來源:2022 world cup
比如以游牧民族帳篷為靈感設計的阿爾拜特體育場,其上層的座位都是可拆卸的,在世界杯結束之后這些作為會投放到當地很多公園與自然生態保護地區來使用,繼續服務卡塔爾人民。另外阿爾賈努布體育場和Al Thumama體育場同樣也是這種可拆卸的模塊化座椅,在世界杯結束后會拆除2萬個席位捐贈給海外足球發展項目、以及分配給卡塔爾的地方政府使用。大學城附近的教育城體育館在比賽結束后會提供給附近高校的學生、教工和社區居民使用,為一些非政府組織提供辦公場所。

圖片來源:Arquitectura Viva
同樣,這座開始拆除的Stadium 974體育場也是爭取物盡其用——據悉,正在聯合申辦2030年世界杯的南美四國之一烏拉圭計劃收走這些集裝箱,并有意將場館重新復刻建造。
所以,Stadium 974興許會成為史上首座在不同國家使用的世界杯場館。(作者:蘭紅超,圖片來源于網絡)

圖片來源2022 world cup


国内自拍视频综合体